明渠的測量流量
有些工廠給排水道為敞開渠道,具有自由表面自然流,采用明渠流量計測量流量。而另有一些工廠排水道和下水管渠,雖不敞開,但是在非受壓非滿水狀態下流動,實際上還屬于明渠。ISO(國際標準化組織)通常稱滿水管為封閉管道,流體在水泵的推動或高位槽位能的作用下作強迫流動,而明渠則是靠水路本身坡度形成的自由表面流動。
隨著人們對水資源合理利用意識的增強和日益增長的污水治理的需要,渠用流量計的研究和應用越來越得到重視。國際標準化組織(ISO)設立了專門的技術委員會,即TC113 明渠流體流量技術委員會。并在最近20多年時間內制定和發布了幾十個明渠液體流量測量方法和儀表方面的國際標準。
明渠流量測量方法的種類有很多,僅ISO TC113已制定和發布標準的就有近10種,工業用明渠流量計主要分為堰式和槽式兩大類。
堰槽式流量計的工作原理是在明渠中設置標準化了的量水堰槽,并在規定位置測量水位,則流過堰槽的流量與水位成單值關系。根據相應流量公式或經驗公式或用查表法由測出的水位值換算出流量值。
(1)堰式流量計堰式流量計分薄壁堰、寬頂堰、三角形剖面堰、平坦V形堰等多種,
下面以薄壁堰為例敘述其特點和應用。
薄壁堰是指在明渠中垂直水流方向安裝的具有一定形狀的缺口,并加工成堰口的薄壁堰體,過流時其水舌表面得到充分發展的量水建筑物。其中三角形缺口薄壁堰具有最高的流量測量精確度。
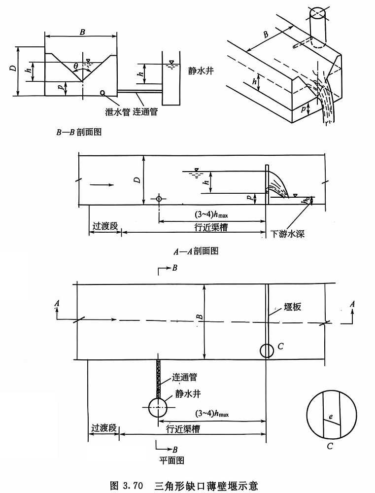
①三角形缺口薄壁堰。圖3.70所示為三角形缺口薄壁堰示意。堰板通常用金屬材料或工程塑料制成。堰口頂面e為一平面,與堰板上游面相交處成銳緣狀態。堰口表面應光潔無毛刺。堰板上游面距堰頂20~50mm范圍內加工成光滑表面。
泄水管設于堰板最低處,管徑為50~75mm,用于檢修或停水期間泄空堰體上游積水。泄水管的出口段安裝閥門,流量測量過程中,閥門關閉不得漏水。
堰板上游規定距離設置靜水井一只,用于測定水位。在靜水井與明渠之間用連通管連通。通過靜水井測量堰板上游的水位,不僅水位平穩,而且避開了堰板上游水面的漂浮物對水位測量的影響。

三角形缺口薄壁堰的流量同水位之間的關系,在ISO1438/1中用函數表格的形式給出,也有一些學者提出了一些經驗公式,對于θ=90°的三角形缺口薄壁堰,較為著名的公式有湯姆遜公式,即:

上述薄壁堰是明渠流量計中測量精確度最高的,能達到±(1~3)% FS,范圍度為(10~20):1,流量測量范圍可達0~40000m3/h,其中三角形缺口薄壁堰為小流量,矩形缺口薄壁堰為中流量,等寬薄壁堰為大流量。
除了薄壁堰之外,堰式流量計中還有寬頂堰、三角剖面堰、平坦V形堰等。它們各自的結構和技術要求請參閱文獻和ISO相應的標準。
④ 堰式流量計的特點
a.結構簡單,價格便宜,測量精確度高,可靠性好。
b.因水頭損失大,不能用于接近平坦地面的渠道。
c.堰上游易堆積固形物,要定期清理。
(2)槽式流量計。槽式流量計的常用測流槽有多種型式。在渠道中收縮其中一段截面積,收縮部分液位低于其上游液位,測量其液位差以求流量的測量槽,一般稱作文丘里槽。1922年在文丘里槽的基礎上開發適用于矩形明渠的巴歇爾槽(Parshall flume,簡稱P槽),1936年開發適用于圓形暗槽的帕爾默-鮑魯斯槽(PalerBowlus flume,簡稱 PB槽)。
①P槽。P槽流量計的特點如下。
a.水中固態物質幾乎不沉積,隨水流排出。
b.水位抬高比堰小,適用于不允許有大落差的渠道。
其結構、技術要求、安裝及流量同液位差的關系,可參照JJG711明渠堰槽流量計試行檢定規程 7.1~7.5。

PB槽的特點如下。
a.在維持自由水面流的管道內,管壁粗糙度等條件變化會導致流量值變化,而PB槽幾乎不受管壁粗糙度等條件變化的影響,測量值的長期變化小。
b.PB槽的水頭損失在非滿管流儀表中屬于較小的,喉道部槽頂(crest)自清洗效果顯著,幾乎不必擔憂固形物的沉淀和堆積。
c.作為渠道不發生射流的條件,PB槽上游暗渠坡度必須在20/1000以下,然而實際渠道幾乎沒有會超過該坡度者。
d.渠道下游側水深必須小于上游側水深的85%,不能滿足此條件,測量精確度會下降,有時甚至無法測量。
(3)常用液(水)位計。堰式、槽式流量計都是由液(水)位計算流量,因此均需配用相應的液(水)位計。明渠流量計常用的液位計有浮子式、電容式、壓力式和超聲式。
非接觸式超聲波水位計在明渠流量計中應用得越來越廣。它同量水堰槽配合使用,連續測量水位,并進而按指定的流量同水位的關系計算流量值,從而對明渠中的水流量實現連續測量。對于污水,難免存在沾污和腐蝕性,采用接觸式水位測量儀表,容易因污垢和腐蝕性引起故障,非接觸式測量則有明顯的優越性,但測量點必須趨避表面有大量泡沫的場所。
其工作原理如下。
儀表探頭(換能器)固定安裝在量水堰槽靜水井的上方,如圖3.74所示,探頭向水面發射超聲脈沖波,聲波遇水面后產生反射。探頭接收反射波,成為回波。探頭下方固定裝有校正棒,也會產生反射,被探頭接收,成為校準波。儀表內的單片機記下發射波到校準波之間的時間差t1及發射波到回波之間的時間差t2,如圖3.75所示,根據回聲測距原理可知:

探頭安裝完畢,探頭到液位測量起始點的距離L就是已知數,將L值置入儀表內,于是儀表運行后就可測量水位h。
流量與水位之間的關系因堰槽量水器的參數不同而異,通過操作鍵置入量水器有關參數,儀表用查表和線性插值得方法求得流量。這種儀表一般可達到千分之幾的測量精確度。